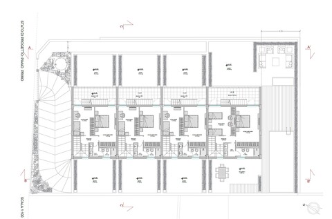
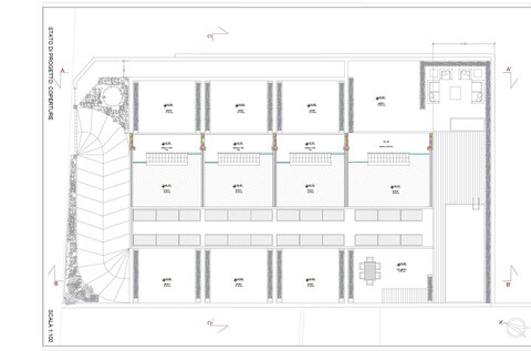
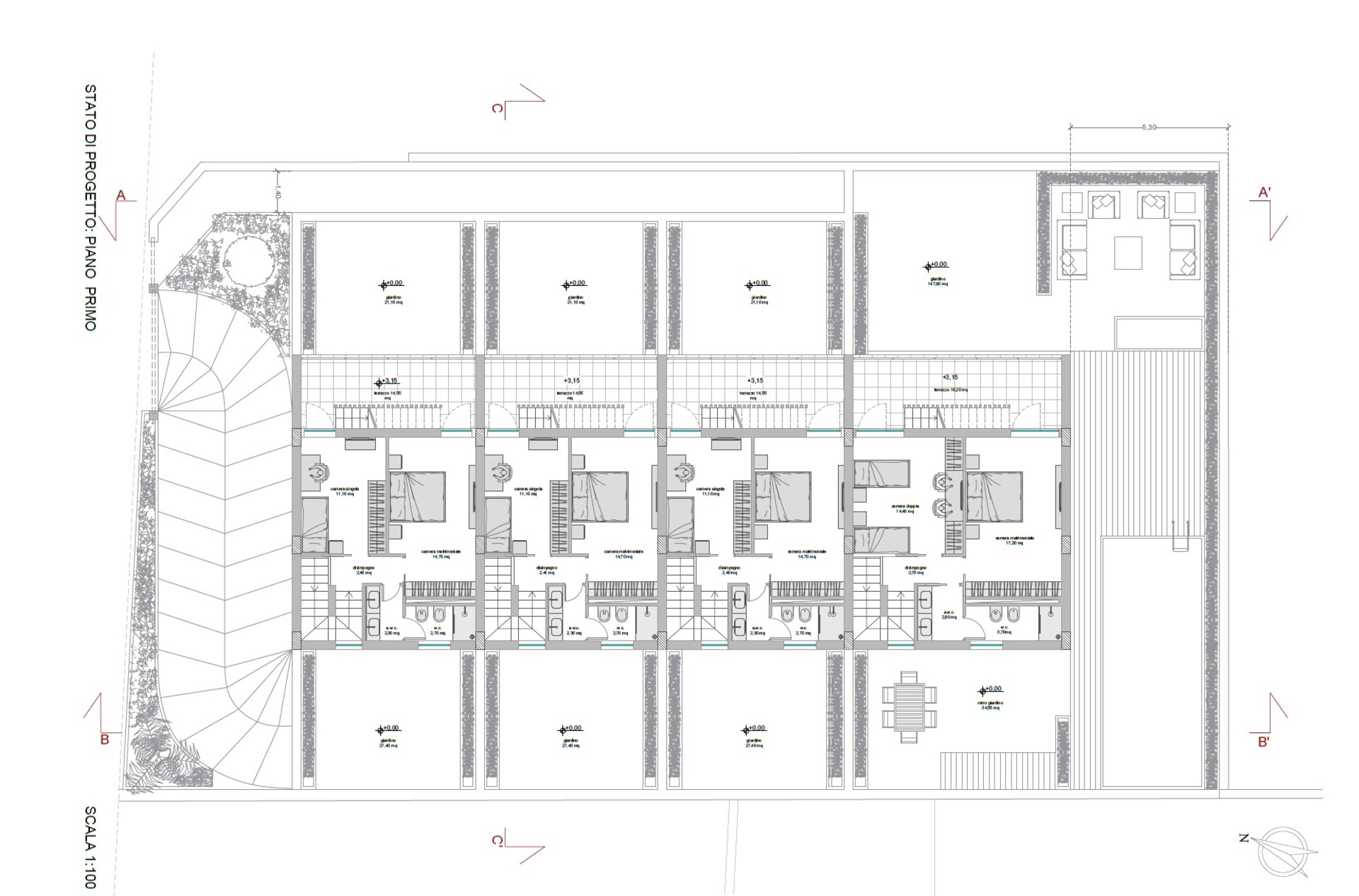
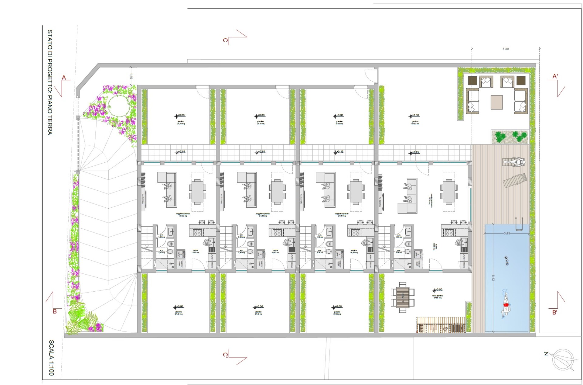
Porzione di villa a schiera in costruzione, contesto residence in via villa Cardillo, in esclusivo contesto riservato e circondata da spazi verdi di interesse storico, come i giardini di villa Scalea e le aree circostanti del viale Lanza di Scalea. La struttura ospiterà quattro abitazioni che si sviluppano su 2 livelli con terrazzo sovrastante, ognuna con i propri spazi esterni privati ed un ampio semicantinato che sarà suddiviso con quattro box auto, tre dei quali doppi ed uno quadruplo. Sono disponibili due tipologie con superfici interne ed esterne differenti, nello specifico: tre unità con una superficie interna di 140 mq ca. con spazi esterni di 120 mq ed una unità con superficie interna di 190 mq ca. con spazi esterni di 260 mq, che si estende lungo le 3 esposizioni dove vi è la possibilità di realizzare la piscina ad uso esclusivo. Quest'ultima con una richiesta di € 570.000. Realizzate con ottimi materiali e possibilità di scelta dal capitolato, dotate di innumerevoli confort, tra cui installazione di sistema isolamento termo-acustico ed accessori per un risparmio energetico, come l'impianto di fotovoltaico da 6 KW con accumulo fino a 10 KW. Ultimazione e consegna prevista per ottobre 2026.
APE A+++
Villetta a schiera in Vendita a Palermo Cardillo
- Contratto: Vendita
- Tipo: Villetta a schiera
- Provincia: Palermo
- Comune: Palermo
- Zona: Periferia
- Contesto: Periferia
- Indirizzo: VIA VILLA CARDILLO
- Quartiere: Cardillo
- Mq: 140
- N° vani: 4
- N° bagni: 2
- N° balconi: 1
- Piano: su più livelli
- Condizione: In costruzione
- CE Classe: A+
- Esposizioni: 2
- Anno di costruz.: 2026
- Stato attuale: Libero
- Codice:
Informazioni
Impianti
Accessori
Mappa
Potrebbero interessarti anche:
-
137m2 | 4 | 2 | 3
Appartamento in Vendita a Palermo C.so dei Mille-Messina Marine
€ 165.000,00 -
90m2 | 3 | 1 | terra
Appartamento in Vendita a Palermo Resuttana - San Lorenzo
€ 88.000,00 -
184m2 | 5 | 3 | su più livelli
Fabbricato indipendente in Vendita a Palermo Cardillo
€ 355.000,00 -
90m2 | 3 | 1 | Terra
Appartamento in Vendita a Palermo Sferracavallo
€ 109.000,00 -
145m2 | 5 | 1 | Terra
Appartamento in Vendita a Palermo Tommaso Natale
€ 129.000,00 -
440m2 | 8 | 4 | su più livelli
Villa in Vendita a Palermo Cardillo
€ 1.080.000,00 -
110m2 | 4 | 2 | rialzato
Appartamento in Vendita a Palermo Michelangelo - Cruillas
€ 189.000,00 -
125m2 | 4 | 1 | 1
Appartamento in Vendita a Palermo Cardillo
€ 155.000,00

































Condividi