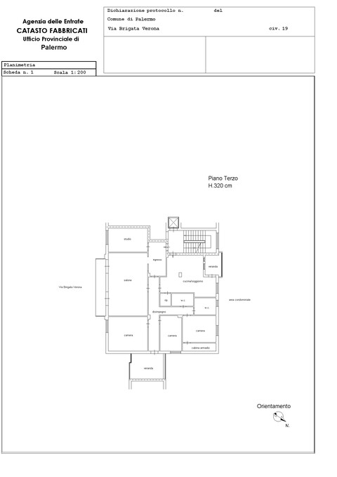
Appartamento panoramico sito in via Brigata Verona, in condominio costruzione anni 70, con area parcheggio a riempimento, senza servizio di portierato e con sistema di video-sorveglianza. Situato a pochi minuti dalla principali zone commerciali della città, nei pressi di viale Campania e via Empedocle Restivo, l'appartamento gode di una splendida vista su Villa Costa e di una ulteriore vista su di un atrio interno, al suo interno gli spazi sono ben distribuiti ed il doppio ingresso da la possibilità di dividere l'appartamento. La superficie complessiva di 215 mq presenta un'ampia zona di ingresso e disimpegno, un salone doppio con balcone su prospetto, due camere studio, 2 camere matrimoniali, una delle quali con cabina armadio, una cameretta, una cucina soggiorno con veranda, due bagni e ripostiglio. L'immobile si presenta in ottimo stato d'uso, innumerevoli confort presenti come infissi in alluminio con vetrocamera, impianto climatizzazione e riscaldamento autonomo a metano. Per poter apprezzarne di presenza la sua bellezza e la sua funzionalità, vi invitiamo a fissare un appuntamento, previa disponibilità dal lunedì al venerdì. APE g
Appartamento in Vendita a Palermo Sciuti - Lazio - Restivo
- Contratto: Vendita
- Tipo: Appartamento
- Provincia: Palermo
- Comune: Palermo
- Zona: Semicentro
- Contesto: Periferia
- Indirizzo: via Brigata Verona 19
- Quartiere: Sciuti - Lazio - Restivo
- Mq: 215
- N° vani: 8
- N° bagni: 2
- N° balconi: 1
- Piano: 3
- Condizione: Ottimo
- CE Classe: G
- Esposizioni: 2
- Anno di costruz.: 1970
- Stato attuale: Libero al rogito
- Spese condominiali:€ 70,00
- Codice:
Informazioni
Impianti
Accessori
Mappa
Potrebbero interessarti anche:
-
137m2 | 4 | 2 | 3
Appartamento in Vendita a Palermo C.so dei Mille-Messina Marine
€ 165.000,00 -
90m2 | 3 | 1 | terra
Appartamento in Vendita a Palermo Resuttana - San Lorenzo
€ 88.000,00 -
184m2 | 5 | 3 | su più livelli
Fabbricato indipendente in Vendita a Palermo Cardillo
€ 355.000,00 -
140m2 | 4 | 2 | su più livelli
Villetta a schiera in Vendita a Palermo Cardillo
€ 420.000,00 -
90m2 | 3 | 1 | Terra
Appartamento in Vendita a Palermo Sferracavallo
€ 109.000,00 -
145m2 | 5 | 1 | Terra
Appartamento in Vendita a Palermo Tommaso Natale
€ 129.000,00 -
440m2 | 8 | 4 | su più livelli
Villa in Vendita a Palermo Cardillo
€ 1.080.000,00 -
110m2 | 4 | 2 | rialzato
Appartamento in Vendita a Palermo Michelangelo - Cruillas
€ 189.000,00

































Condividi